FOR LEASE |
5,000 SF
PROPERTY HIGHLIGHTS
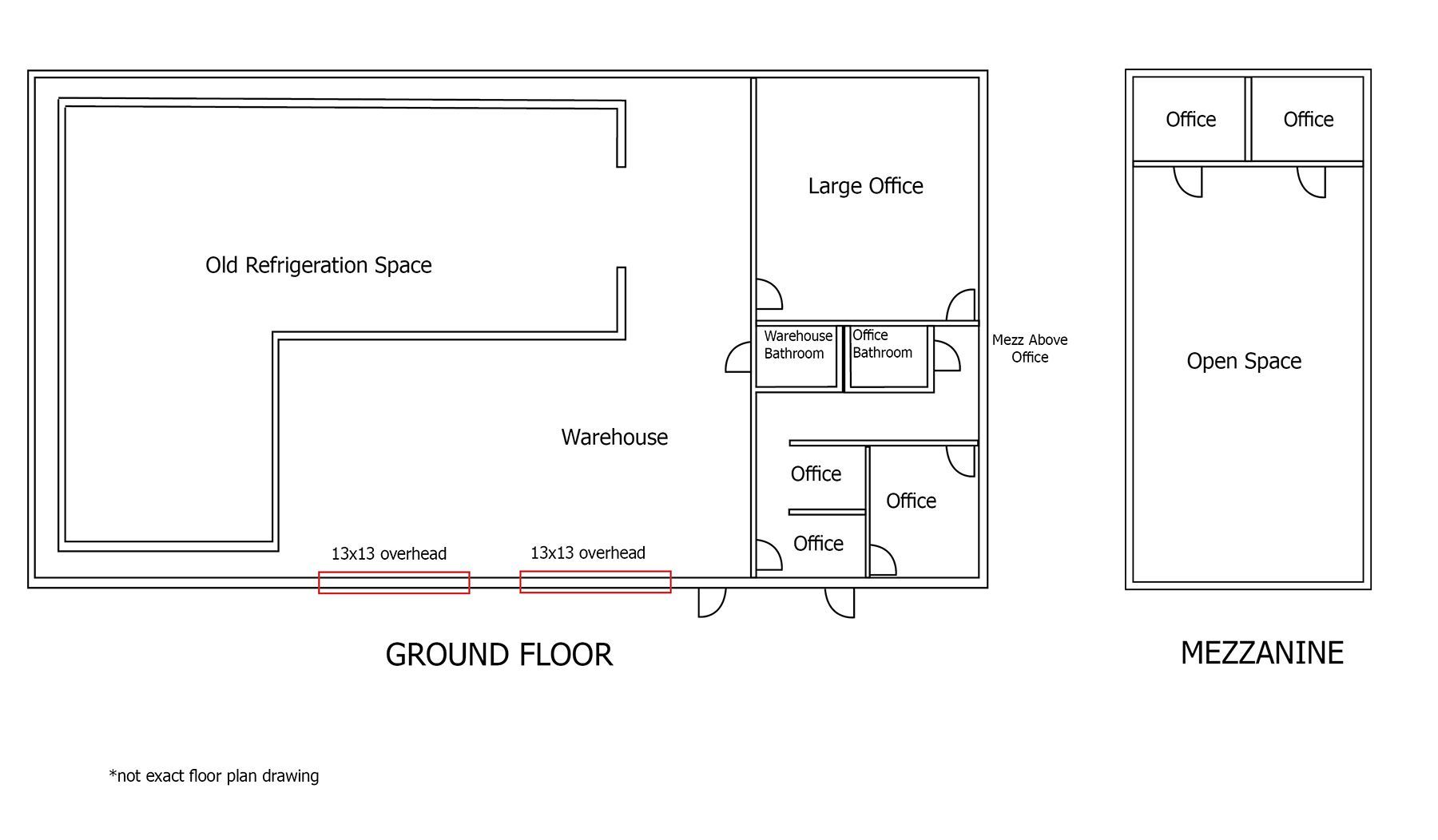
DESCRIPTION: South Austin Industrial Outside Storage for lease. Is located at the intersection of South 1st Street and FM 1626. Easy access from IH 35 at the Onion Creek exit. The building has three phase power to support manufacturing needs. There is also a previous walk in cooler within the warehouse.
LOCATION: On the SE corner of FM 1625 and Conroy Ln (S 1st) +/- 1.75 miles east of Manchaca Rd and .5 miles west of IH 35; just 9 miles south of Downtown Austin. Cell tower not included.
SIZE: ±5,000 SF Office Warehouse includes:
±1250 sf office
± 3750 sf warehouse
± 2000 sf hot warehouse
± .8 acres paved and fenced yard
LEASE RATE: Call broker for pricing.
LEASE TERM: 36 -120 Months
UTILITIES: Water, Wastewater, Electric
ZONING: ETJ
